House of life
Gallery
Concept
- Initiative
- bright and user friendly living units, common areas where residents can meet each other or recive visits...
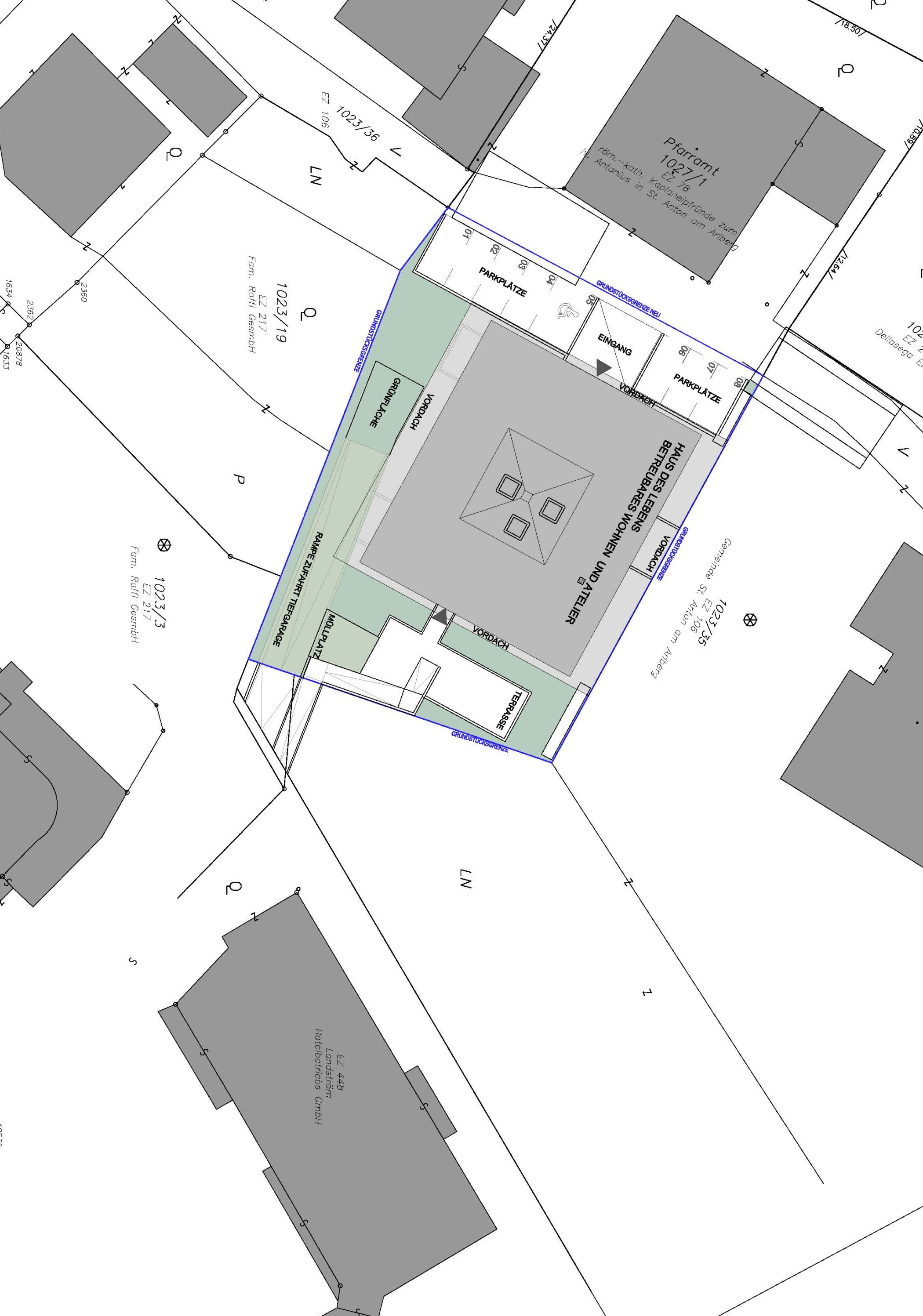
- Architecture
- the residents and visitors get into the 1-2 room apartments via the large and bright foyer, a clear, simple access system, completely barrier-free, leads into the apartments, which are of course equipped with plenty of daylight and private open space...
- Technology
- .... the users should feel protected and accompanied
Info
| Category | Housing |
|---|---|
| City | St. Anton am Arlberg |
| Commissioner | Neue Heimat Tirol NHT |
| Period | 2015–2017 |
| Type | direct |
| Status | built |
| Copyright | driendl*architects ZT GmbH |
| Images | driendl*architects, NHT/Alexander Pauli |
Plans
Media
- Generate Pdf
- Share Project